OPEN TO NATIONWIDE ACCREDITED INVESTORS

Exhibit A -- Specifics of the Loan

Open to Nationwide Accredited Investors ONLY


Image 2


Loan Number: R0424
Loan Amount: $360,000
Minimum Investment: $10,000
Call for availability of smaller participations
Type: Purchase Money First Trust Deed
Yield: 11.0%*
Target Closing Date: April 10, 2026

Important Links:
How to Invest in This Loan
Suitability Requirements
Private Placement Memorandum
Loan Servicing Agreement
Audited Financial Statement for B & S
Inventory of Available Loans
To Be Added to Our Investor Email List


PROPERTY

Project: Marlin TX Fix N Flip
Property Address
: 1 Mesquite Tree Lane, Marlin, TX 76661
Description: The subject property consists of a 5 bedroom, 4.1 bathrooms, 8,641SF single family residence on 3 parcels totaling 3.08-acres, located in Marlin, Falls County, TX.

For an aerial view of this property...Click Here!
For a street view of this property...Click Here!

Image 2


Image 2


Image 2

TERMS

Term of Investment
36 months
Current Interest Rate
11.0%*
Repayment Schedule
30-Year Amortization
Monthly Payment
$3,384.20*
Purchase Price of the Note
$360,000
Current Balance on the Note
$360,000
Maturity Date
36 months
Balloon Pymt. after 36 months app.
$360,276.70
Late Charge Amount
$395.42**
Prepayment Penalty
None

*Net of servicing
**To be shared equally with B&S

EQUITY ANALYSIS

Appraised Value AS-IS - March 23, 2026
$325,000
Appraised Value - ARV
$675,000
Purchase Price
$229,900
Protective Equity - AS-IS
($35,000)
Protective Equity - ARV
$315,000
Protective Equity - Purchase Price
($130,100)
Loan-to-Value - AS-IS
110.8%
Loan-to-Value - ARV
53.3%
Loan-to-Value - Purchase Price
156.6%

OPERATING STATEMENT

INCOME
Rental Income
$60,000
Vacancy Allowance (3.0%)
$1,800
Effective Gross Income:
$58,200
   
EXPENSES
.
Pest Control
$500
Casual Labor
$500
Interior Paint / Decorations
$1,000
Repairs / Maintenance
$1,000
Management
$2,881
Supplies
$500
Reserves for Replacement
$3,480
Total Expenses
$9,861
 
NET OPERATING INCOME
$48,339
Note: Pro forma based on appraiser's estimates

BORROWERS


Name(s)
LLC
Occupation
Real Estate Development
Percent Ownership
100%

Name(s)
Corporation
Occupation
Financial Services
2025 Net Business Income
($106,660)
2024 Net Business Income
$137,265

Name(s)
Individuals
Net Worth
$16,044,379*
His Occupation
Real Estate
Her Occupation
Homemaker
2024 Adjusted Gross Income
$266,656
2023 Adjusted Gross Income
$85,142
*Net Worth not verified

Earn a $250 Referral Fee 
Refer accredited trust deed investors
for our mailing list.

Click Here  
To Get Notifications Via Text
for our trust deeds.


To invest, please call Justine Smith
at 1-800-606-3232 or CLICK HERE.



MARLIN TX FIX N FLIP

George Says: "This looks like a reasonable little hard money loan. Small loans have small payments, which are much easier to make. The couple guaranteeing our loan report a net worth of $16 million. This means the net-worth-to-loan-size ratio is an enormous 44. Banks want to see this ratio is larger than 1.0. I think we satisfy that test. (Chuckle) Lastly, 4.1 baths means 4 1/2 bathrooms. It’s some sort of appraiser jargon or some convention used for automated appraisal forms."

Blackburne & Sons is pleased to present this purchase money first trust deed secured by a 5 bedroom, 4.1 bathrooms, 8,641SF single family residence on 3 parcels totaling 3.08-acres located in Marlin, Falls County, Texas.

The purpose of this loan is to purchase the subject property for $229,900, rehab the property in the amount of $173,300, and put the property up for sale once completed (fix & flip). Our loan will also include a $175,000 holdback to be held by a third party company to insure all of the rehab is done to the property.

COUNTY INFORMATION

Falls County is a county in the U.S. state of Texas. As of the 2020 census, its population was 16,968. The county seat is Marlin. It is named for the original 10-foot-tall waterfalls on the Brazos River, which existed until the river changed course during a storm in 1866. The present falls are two miles northeast of the original falls, at the Falls on the Brazos Park, a camping site only a few miles out of Marlin on Farm to Market Road 712. Falls County is part of the Waco, Texas, metropolitan statistical area. With a large portion of its economy based on agriculture, Falls County is sixth among 254 Texas counties in corn production.

According to the U.S. Census Bureau, the county has a total area of 774 sq mi, of which 765 sq mi are land and 8.4 square miles (1.1%) are covered by water. Marlin has been a filming location for two movies: Leadbelly (1976) and Infamous (2006). In 2013, a ranch in northeast Falls County near Mart, Texas, was the site of the series premiere of Treehouse Masters, in which a couple had a $200,000 treehouse built on their property.

CITY INFORMATION

Marlin is a city in Falls County, Texas, located approximately 30 miles southeast of Waco and 56 miles northwest of Bryan/College Station. Positioned along Texas State Highways 6 and 7, the area benefits from regional connectivity to larger employment and commercial centers.

As of the 2020 census, Marlin has a population of approximately 5,462 and serves as the county seat of Falls County. The local economy is supported by a mix of retail, public administration, and healthcare-related employment sectors.

Recent data indicates a median home value of approximately $66,000 and a home ownership rate of 66.1%, reflecting an affordable housing market with a stable base of owner-occupied properties. Median household income is approximately $36,426.

SUBJECT PROPERTY DETAILS

The subject property consists of three parcels totaling approximately 3.08 acres with an irregular configuration. It is located in Marlin, Texas, approximately 21 miles southeast of downtown Waco. The surrounding area is primarily residential, consisting of single-family homes of varying ages, with a mix of parks, schools, and vacant land in the immediate vicinity.

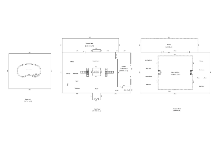
The site is improved with a two-story single-family residence originally constructed in 1984. The home is situated on a concrete slab foundation with a partial basement and contains approximately 8,641 square feet of living area, including 5 bedrooms and 4.1 bathrooms. Interior features include central heating and air conditioning, tile flooring, wood trim finishes, and a recently updated kitchen and bathrooms (within the past year). Additional amenities include a fireplace, covered deck, open porch, balcony, and a gunite pool. The property also features a large concrete driveway with capacity for approximately 16 vehicles, a detached five-car garage, and pipe/wire perimeter fencing.

Following acquisition, the borrower plans to complete approximately $173,300 in renovations to address deferred maintenance and improve the overall condition of the property. The scope of work includes removal and replacement of the septic tank, damaged drywall, cabinetry, fixtures, and flooring, as well as repair and replacement of fascia, gutters, and exterior finishes. Structural repairs will be completed on the front deck/porch, balcony, and fireplace framing. Additional improvements include plumbing system repairs, refinishing existing flooring where salvageable, and installation of new luxury vinyl plank flooring throughout the remaining areas. The bathrooms will be updated with new vanities, toilets, faucets, and fixtures. Additional miscellaneous repairs and improvements will be completed as needed.

It should be noted that the taxes on this property are $12,687 per year. The appraiser did not include the taxes on the operating statement because it is not common practice to include them on residential pro forma operating statements.

BORROWER SUMMARY

Our guarantors are a married couple who will be holding title to the property via a Limited Liability Company (LLC), of which the husband is 100% owner. This entity specializes in real estate development and was formed in April of 2024. The entity paid for rehab costs in 2024 which resulted in no reported earnings for that year. They have not yet filed their 2025 taxes.

The borrowers own another entity which will be providing a corporate on this loan. This entity specializes in financial services and was formed in March of 2022. It is also owned 100% by the husband. The entity reported a net business income of ($106,660) in 2025, and $137,265 in 2024. They have not yet filed taxes for 2025.

The guarantors work as a real estate developer and a homemaker. Together they self-reported a net worth of $16,044,379 and have mid-credit scores of 633 and 743. Their tax returns show an adjusted gross income of $266,656 in 2024 and $85,142 in 2023.

The borrowers report extensive experience in real estate development, including fix-and-flip and rehabilitation projects in both Texas and Pennsylvania. According to the borrower, they have completed approximately six projects in the Dallas-Fort Worth (TX) area, currently perform three to four rehabs per month in Pennsylvania, and maintain a rental portfolio of over 100 properties in the Pittsburgh market.

VALUATION SUMMARY

We hired a General Certified Appraiser who valued this property at $325,000 (AS-IS) and $675,000 (ARV).

At an 11.0% yield to investors and a 110.8% LTV (AS-IS) and 53.3% LTV (ARV), this appears to be a reasonable investment. Investing in any first trust deed involves substantial risk, so be sure to read the Risk Factors section of the Offering Circular carefully before investing. A large and prolonged decline in real estate values is possible. Foreclosed commercial properties almost always need to be renovated before they can be leased or sold, so be sure to maintain some liquidity.

ACCREDITATION STANDARDS

Please note this offering is a SEC Regulation D filing and will be done through a Private Placement Memorandum. In order to invest, you must be an accredited investor. Generally speaking, an accredited investor is an individual:

(a) whose individual income exceeds $200,000 in each of the past two years, with reasonable expectation of reaching the same going forward OR
(b) whose joint income with spouse exceeds $300,000 in each of the past two years OR
(c) your NET WORTH exceeds $1,000,000 (exclusive of your primary residence) OR

If you plan on investing through an entity, the entity can qualify if ANY of the following are met:

(a) all equity owners must be accredited OR
(b) any trust with more than $5,000,000 in assets OR
(c) ERISA with either $5,000,000 in assets OR a bank, insurance company, or registered investment advisor as it's trustee OR
(d) any self directed ERISA with an accredited investor(s) making the business decisions OR
(e) an IRA owned by an accredited investor


George’s Advice For Successful First Mortgage Investing

  1. You should spread your mortgage investment portfolio out among lots of different deals. If you have $300,000 to invest, you should invest $10,000 to $20,000 in 15 to 20 different fractionalized first trust deeds. For example, if the deal is a $300,000 first trust deed on an office building in Boise, with a $15,000 investment you would own 5% of the loan. By spreading your money out into a bunch of different deals, you are achieving the diversity of a fund without the failed fund sponsor problem. If you are extremely wealthy, you could double (or even triple) my suggested investment amounts, but be careful about pouring too much money into a single deal. We once had a whole building fall into an old coal mine. Ouch.

  2. Be wise and resist investing in any first trust deed yielding more than 9%. I would personally never invest in a first trust deed with a double-digit yield. The payments slowly grind the borrowers into the dust.

  3. Blackburne’s Law theorizes that a portfolio of 8% and 9% first trust deeds will outperform a portfolio of 11% and 12% first trust deeds over a seven-year term. Only our wisest (and eventually the happiest) investors listen to me.

  4. You can also buy some of our smaller deals in their entirety, but I only recommend this if you are richer than Crassus.

  5. It is very easy to lose money in hard money first mortgages, so fight-fight-fight against the temptation to invest in high-yield deals. As Nancy Reagan used to say, “Just say no.” But if you choose 7% to 9% first mortgages, I predict that you will be very, very pleased. 

  6. During the S&L Crisis, commercial real estate fell by 45%. Within three years of hitting bottom, values reached new highs. During the Dot-Com Meltdown, commercial real estate fell by 45%. Within three years of hitting bottom, values reached new highs. During the Great Recession, commercial real estate fell by 45%. Within three years of hitting bottom, values reached new highs. Some time in the next decade, we will have another opportunity to snatch up prime commercial real estate at a huge discount. You will be terrified, but when Blackburne and Sons invites you to join a syndicate to buy a nice commercial property at a 35% discount off its prior high, just remember that the best time to invest is when blood is running in the streets. Why not when real estate has fallen by 45%? You’ll never catch the very bottom because historically the bounces off the bottom happen much too fast. Bounce-soar. You will be terrified, but just remember that the best time to invest is when blood is running in the streets.

Earn a $250 Referral Fee 
Refer accredited trust deed investors
for our mailing list.


To invest, please call Justine Smith
at 1-800-606-3232 or CLICK HERE.


Blackburne & Sons Realty Capital Corporation--For more information, contact Justine Smith
555 University Ave., Suite 150, Sacramento, CA 95825
Telephone: (916) 338-3232 * Fax: (916) 338-2328
Real Estate Broker -- California Department of Real Estate -- License Number 829677 -- NMLS Number 103430
Publicly advertised to California residents only under California Department of Business Oversight business plan permit.
Return to C-Loans Home Page | Return to Blackburne & Sons Home Page
Copyright © 2025 Blackburne & Sons Realty Capital Corporation. All rights reserved. (800) 606-3232